+(34) 966 920 997
info@pinorte.com

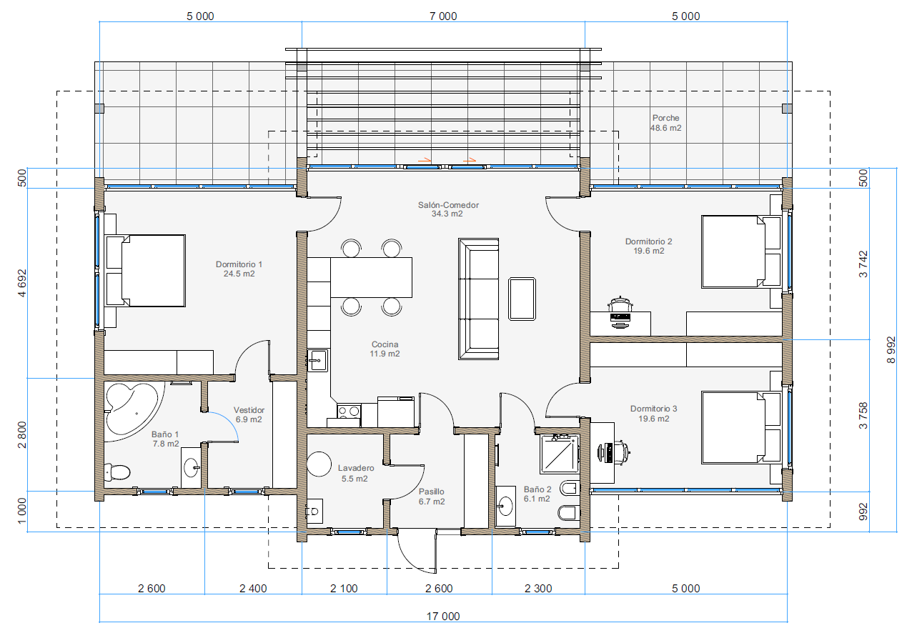
Plano de vivienda

Superficies construidas

Vivienda: 143 m2
Porche (50%): 24,3 m2
Total superficie: 167,3 m2

Alzados laterales y sección

Vista frontal

Vista posterior

Vista lateral esquerda

Vista lateral direita

Vista seccionada

Altura de los techos:

Vivienda: 143 m2
Porche 24,3 m2
Total: 167,3 m2

Memoria de calidades

Paredes
Paredes exteriores 240 mm , paredes interiores 160 mm según el proyecto, de tronco laminado (pino), aisladas en su interior con aislamiento PIR, pintadas con pintura de Remmers (Alemania), ensambladas en paneles, listas para su instalación , con instalación eléctrica en tubo corrugado metalico con aislamiento de PVC .
Ventanas
Ventanas 88 DIN (Certificadas con Instituto Alemán para la Normalización) , pino laminado, accesorios Roto (Alemania), imprimación y barniz Remmers (Alemania), ventana de doble acristalamiento de doble cámara (4iх16х4х14х4i) Guardian ClimaGuard Solar.
Cristaleras
Cristaleras con un marco de 160 mm de espesor, imprimación y barniz Remmers (Alemania), ventana de doble acristalamiento de dos cámaras (4iх16х4х14х4i) Guardian ClimaGuard Solar.
Puertas
Puertas de entrada de pino macizo, pintadas en color de ventanas, imprimación y barniz Remmers (Alemania), accesorios Roto (Alemania). Puertas de interior de pino macizo barnizados en color.
Tapajuntas
Tapajuntas, cercos pintados en el color de las ventanas. Imprimación y barniz Remmers (Alemania).
Cubiertas
  • Vigas estructurales y listones de madera laminada . Tablas frontales y vigas falsas del techo de madera laminada , pintadas en color de las ventanas con pintura Remmers (Alemania). Voladizos de cubierta revestido con planken (sin nudos), pintados en el color de las paredes con pintura Remmers (Alemania).
  • Techos revestidos con frisos de madera, pintados en el color de las paredes con pintura Remmers (Alemania).
  • Películas de impermeabilización y barrera de vapor "JUTA" (República Checa), "Yutavek" 115, "Yutafol" H96.
  • Aislamiento térmico - lana mineral, espesor 300 mm.
Cimentación
Losa de cimentación de hormigón armado. Grosor 25 cm.
Suelos
  • Suelo sin sistema de calefacción, compuesto por:
    • capa de poliestireno exstruido de 100 mm de espesor;
    • capa de mortero confeccionado en obra, de 50 mm de espesor;
    • solado de baldosas ceramicas de gres porcelánico.
  • Sistema de calefacción por suelo radiante eléctrico, compuesto por:
    • capa de poliestireno exstruido de 100 mm de espesor
    • manta calefactora 100 W/m2, adherida al soporte con adhesivo cementoso aplicado en capa fina;
    • solado de baldosas cerámicas de gres porcelánico .
  • Sistema de calefacción por suelo radiante por agua caliente, compuesto por:
    • capa de poliestireno exstruido de 100 mm de espesor;
    • capa de mortero confeccionado en obra, de 50 mm de espesor con tubo de polietileno reticulado (PE-Xa) de 16 mm de diámetro exterior y 2 mm de espesor;
    • solado de baldosas cerámicas de gres porcelánico .
    Fontaneria
    Tuberías PB (polibutileno) de alimentación de agua, tuberías del desagüe de PVC. Termo eléctrico para ACS
    Electricidad
    La instalación eléctrica se realiza de acuerdo con lo dispuesto en el vigente Reglamento Electrotécnico de Baja Tensión. Incluye los puntos de luz, tomas de TV y teléfono previstos por la normativa vigente. Mecanismos VIKO.
    Mueble de cocina
    Mobiliario completo en cocina , realizado con frentes de cocina con recubrimiento Q-Line de Top Form acabado Supermate ,perfil tirador integrado tipo "J" , cantos termoplásticos de ABS ; cajones y baldas del mismo material que el cuerpo, sistema de cierre amortiguado. Fregadero de acero inoxidable con grifería.

    Video

    Contactos

    Casas pinorte sl